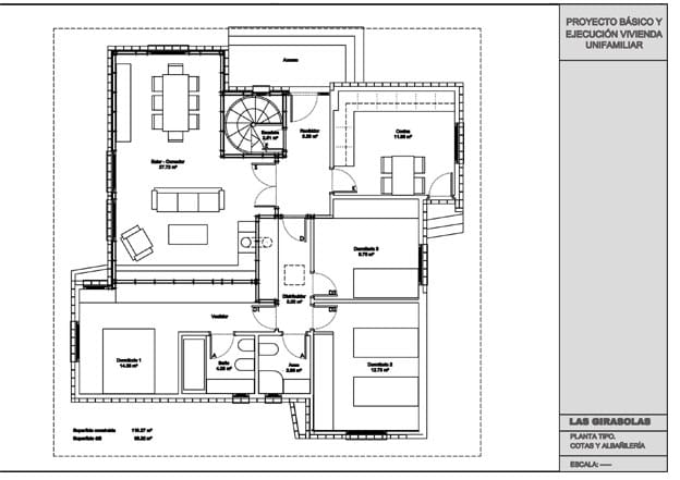
Las Girasolas, las casas que giran solas
Se trata de viviendas que se mueven como lo hacen los girasoles, es decir, se orientan hacia el sol para aprovechar todas las ventajas que ofrece el astro rey y, como los mismos girasoles, lo hace de manera autónoma de modo que la casa es giratoria y, por lo tanto, orientable. También es autosuficiente energéticamente, según sus autores, que aseguran que se trata de “lo más de lo más” en arquitectura y en ingeniería. El precio de la construcción ronda los 1.100 euros el metro cuadrado y se llaman Girasolas tal y como destaca la empresa zaragozana Grupo CDM, que importa tecnología alemana de Deutscher Markt a España. En nuestro país se comercializarán los primeros prototipos de Europa, tal y como recogen las imágenes, debido a que España es líder europeo en el uso de energías renovables y uno de los que mas disfrutan de luz solar.
Con independencia de los movimientos de orientación de la vivienda Girasola, que le permite acomodarse en todo momento a la climatología exterior, calor, frío, vientos, lluvia, humedades por capilaridad y en paramentos de fachadas fijas con orientación desfavorable, caben destacarse determinados aspectos antisísmicos al no estar anclado o conexionado el edificio a su asentamiento cilíndrico.







En cuanto a otros aspectos técnicos cabe destacar que en el caso de que la vivienda Girasola se proyecte sobre un sótano, éste resulta diáfano y exento de pilares al no existir en ningún caso una estructura con cargas puntuales, sino que son siempre repartidas y además en movimiento, facilitándose con ello cualquier distribución según el uso.
Este sistema de cimentación monolítica evita problemas que pudieran surgir en la resistencia del suelo ya que al no existir cargas de carácter puntal y ser uniformemente repartidas por el sistema de losa armada, se acomoda perfectamente a terrenos de baja resistencia.





Ahorro de energía
Tal vez el punto más importante de esta vivienda es el bajo consumo y la independencia de las redes publicas. Una Girasola, con sus movimientos, puede captar mucha mas energía en comparación con la que consume, puesto que la misma es mínima y parecida a la de un electrodoméstico durante 24 minutos diarios mediante un programa establecido, y por ello la utilización de las distintas energías renovables, se potencian de manera singular y según sea su emplazamiento, la hacen autosuficiente.
El método de construcción está industrializado y el 70 % se realiza en Zaragoza. No obstante, para una casa Básica hay que hablar de unos 7-8 meses de plazo de ejecución. Su ejecución tiene una singularidad especial, puesto que desde el momento en que se comienzan los trabajos de la vivienda, los equipos, grúas, andamios etc. se instalan en un solo punto y único acceso, puesto que al girar la edificación desde el primer momento, ésta se ejecuta sin instalar andamios perimetrales ni moverse los industriales alrededor del edificio hasta concluir la construcción del mismo.






Así se logra un importante ahorro de costes. Este aspecto adquiere especial relevancia en terrenos inclinados o junto a cortados, acantilados, o con pendientes muy pronunciadas, puesto que evita la ejecución de andamios especiales evitando peligrosidad y riesgos de los trabajadores.
Por otra parte en estos casos se evitan muchos costes y problemas prácticos por varias razones fundamentales:
1º.- No hay necesidad de obras complementarias para conseguir una nivelación para el asentamiento de la vivienda, problema que queda resuelto con el muro cilíndrico de manera directa, rápida y económica.
2º.- En todos los casos no hay necesidad de que la planta de sótano sea de idéntica superficie que la de la vivienda, al trabajar la planta de ésta con voladizos perimetrales, no teniendo que recargar superficie de sótano innecesaria según el uso a que se destine, puesto que el ahorro puede suponer hasta un 30 % de la misma.
3º.- Hay una especial y en ocasiones no menos despreciable ventaja con este sistema constructivo y es que durante el proceso de ejecución final en el emplazamiento de la vivienda al trabajar desde un solo punto y un único acceso, girando ya el edificio, no se producen deteriores en el entorno del mismo como consecuencia de las obras, puesto que en muchos casos existen jardines, arbolado césped, etc.
Las viviendas Girasolas pueden disfrutar de las ventajas y beneficios de este Programa, teniendo en cuenta que “dadas sus características, y si el propietario lo desea, pueden acogerse a los Programas de Viviendas de Protección Oficial Autopromovida, siempre y cuando cumpla los requisitos exigidos y el planteamiento o pretensión del interesado no exceda en su Proyecto de los límites y normativas técnicas o jurídicas establecidas por las Comunidades Autónomas de España, pudiendo con ello beneficiarse de las ventajas y exenciones fiscales que la promoción y construcción de las mismas comporta”, aseguran desde la empresa que fabrica las Girasolas.
